prosiłbym aby osoby nie związane z tematem nie wrzucały na forum postów z reklamami, jeśli ktoś będzie chciał, to będzie wiedział jak was znaleźć. pozdrawiam
[EDIT: spamerski post został usunięty - jakubc]
Projekt domu - As III G NF40
Re: Projekt domu - As III G NF40
Mam kilka pytań:
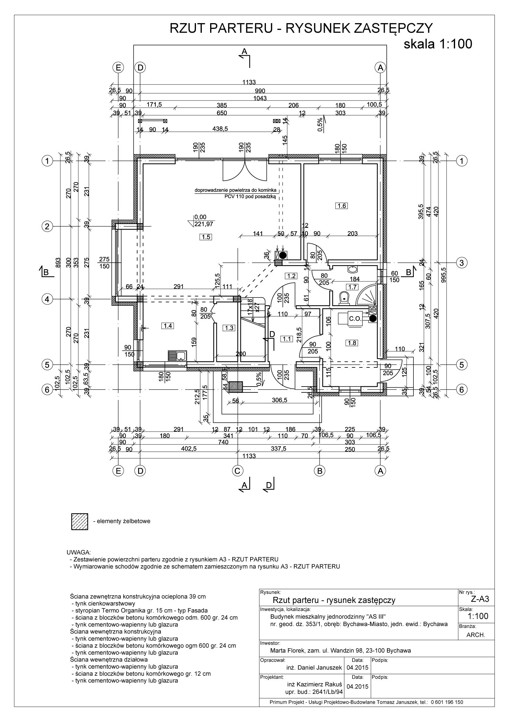
1. Jaki jest strop nad garażem? Przypuszczam że drewniany to przy poszerzeniu na x2 czeka pewnie zmiana.
2. Na rysunku wygląda że komin w kotłowni w pełni zastąpił pustaki? jak jest puszczony przez wieniec? Jest przerwany?
3. W jakim celu są belki na piętrze w dwóch pokojach bezpośrednio przy murze nośnym?
4. Czy może ktoś podesłać skan przynajmniej parteru z projektu?
1. Jaki jest strop nad garażem? Przypuszczam że drewniany to przy poszerzeniu na x2 czeka pewnie zmiana.
2. Na rysunku wygląda że komin w kotłowni w pełni zastąpił pustaki? jak jest puszczony przez wieniec? Jest przerwany?
3. W jakim celu są belki na piętrze w dwóch pokojach bezpośrednio przy murze nośnym?
4. Czy może ktoś podesłać skan przynajmniej parteru z projektu?
Re: Projekt domu - As III G NF40
kolego Lukas. u nas komin jest wsunięty do środka do kotłowni i nie koliduje z wieńcem stropu.
musisz jednak dokładnie dobrać długość i szerokość, aby nie kolidował ci potem z płatwią na dachu. Nie jestem pewien tylko czy komin w wersji z garażem znajduje się w tym samym miejscu co bez garażu. jeśli chodzi o belki na poddaszu podtrzymujące płatew, to tą jedną co przy ścianie nie dawaliśmy bo cieśla stwierdził, że nie ma takiej potrzeby, ponieważ płatew będzie się spierać na murze.
musisz jednak dokładnie dobrać długość i szerokość, aby nie kolidował ci potem z płatwią na dachu. Nie jestem pewien tylko czy komin w wersji z garażem znajduje się w tym samym miejscu co bez garażu. jeśli chodzi o belki na poddaszu podtrzymujące płatew, to tą jedną co przy ścianie nie dawaliśmy bo cieśla stwierdził, że nie ma takiej potrzeby, ponieważ płatew będzie się spierać na murze.
Re: Projekt domu - As III G NF40
Szukam inspiracji, ten projekt bardzo mi się podoba. Na pewno skorzystam.
Re: Projekt domu - As III G NF40
Zapraszamy
W razie jakichs pytań podpowiemy
W razie jakichs pytań podpowiemy
Re: Projekt domu - As III G NF40
Czy ktoś budował wersję z garażem? Dostałem właśnie zdjęcie z projektu i faktycznie komin jest w pełni wpuszczony w pustaki i na pierwszym poziomie jest już ścianą zewnętrzną. Jak wygląda sprawa z wieńcem? Bo wszystko wskazuje na to że jest przerwany, jak to rozwiązaliście na swoich budowach?
Re: Projekt domu - As III G NF40
wyślij wiadomość do Radka, on ma z garażem i ci wszystko powie.
Re: Projekt domu - As III G NF40
W projekcie konstrukcyjnym jest wskazane odpowiednie rozwiązanie. Zbrojenie wieńca oczywiście nie jest przerwane, tylko omija przewód kominowy, wykorzystując przestrzeń stropu.Lukas pisze:Czy ktoś budował wersję z garażem? Dostałem właśnie zdjęcie z projektu i faktycznie komin jest w pełni wpuszczony w pustaki i na pierwszym poziomie jest już ścianą zewnętrzną. Jak wygląda sprawa z wieńcem? Bo wszystko wskazuje na to że jest przerwany, jak to rozwiązaliście na swoich budowach?
Pozdrowienia od zespołu DK
- Jakub
DISCLAIMER: Prezentowane na forum opinie są indywidualnymi opiniami postującego. Oficjalne stanowisko Domowych Klimatów może być inne!

DISCLAIMER: Prezentowane na forum opinie są indywidualnymi opiniami postującego. Oficjalne stanowisko Domowych Klimatów może być inne!
Re: Projekt domu - As III G NF40
My rowniez budujemy Asika, ale w zmienionej wersji.
Kto jest online
Użytkownicy przeglądający to forum: Obecnie na forum nie ma żadnego zarejestrowanego użytkownika i 118 gości