Projekt domu - Alt, Alt N, Alt 4, Alt 7

Porozmawiajmy na temat projektów. Dedykowane wątki dla każdego projektu Domowych Klimatów.
MCR
Żółtodziób
Posty: 1
Rejestracja: 11 gru 2016, 09:52
Kontakt:

Re: Projekt domu - Alt

Post autor: MCR »

Witamy wszystkich serdecznie :)
Planujemy na wiosnę ruszyć z budową , wpadł nam w oko projekt Alt. Czy jest na forum altowicz który buduje się , lub wybudował w Mazowieckim lub bliskich okolicach i byłby na tyle miły i zgodził się na krótką wizytę? Bardzo chcielibyśmy zobaczyć ten dom na żywo :)
Pozdrawiamy ;)
adres mailowy - spark0@vp.pl
osti23
Żółtodziób
Posty: 11
Rejestracja: 17 kwie 2013, 16:24
Kontakt:

Re: Projekt domu - Alt

Post autor: osti23 »

Witam, nasz dom niestety jest dosyć daleko, bo w małopolsce, ale zachęcam Was do tego projektu (chyba ze macie wieksza rodzine niz 2+2).

Dzisiaj wrzucę zdj łazienki, poniewaz udało się ją już posprzątać :)

Pozdrawiam
Załączniki
15556371_10207775207234537_213569363_o.jpg
15556446_10207775207594546_1201547505_o.jpg
15631202_10207775207394541_1201246970_o.jpg
15608662_10207775207154535_92470294_o.jpg
15595675_10207775207114534_106587489_o.jpg
15628600_10207775206514519_349456822_o.jpg
15657870_10207775207074533_744542458_o.jpg
mariusz79
Żółtodziób
Posty: 1
Rejestracja: 02 mar 2017, 19:38
Kontakt:

Re: Projekt domu - Alt

Post autor: mariusz79 »

Witam Altowicze :) mam pytanie ile kosztowała was więźba wraz z dachowką i robocizną ?
aga0660
Żółtodziób
Posty: 1
Rejestracja: 13 mar 2017, 18:53
Kontakt:

Re: Projekt domu - Alt

Post autor: aga0660 »

Witam, czy buduje ktoś dom z projektu Alt NF40 w woj. dolnośląskim ?;)
Krystian999
Żółtodziób
Posty: 1
Rejestracja: 25 kwie 2017, 14:52
Kontakt:

Re: Projekt domu - Alt

Post autor: Krystian999 »

Witam, mam pytanko odnośnie podbitki na zewnątrz jak to jest wykonane bo bardzo ładnie wygląda w kolorze białym
t.malgosia
Żółtodziób
Posty: 1
Rejestracja: 01 maja 2017, 11:45
Kontakt:

Re: Projekt domu - Alt

Post autor: t.malgosia »

Witam wszystkich Altowiczów :-)
Troche tu cicho od jakiegoś czasu, ale może znajdą się chętni do rozmowy :-) Planujemy zakupić projekt domu Alt i zacząć budowę jeszcze w tym roku.
Czy znalazłby się ktoś chętny z Mazowsza i pokazał nam domek na żywo?
Chetnie byśmy podejrzeli, nie ma to jak okiem rzucić na obiekt i mieć prawdziwe rozeznanie :-)
Odezwijcie się proszę.
Dodam, ze planujemy Alt bez garażu z garderobą i pralnią. Może ktoś ma do udostępnienia projekt z podobnymi zmianami?
Pozdrawiam serdecznie i mam nadzieję do zgadania!
Mohini
Żółtodziób
Posty: 2
Rejestracja: 08 maja 2012, 10:32
Kontakt:

Re: Projekt domu - Alt

Post autor: Mohini »

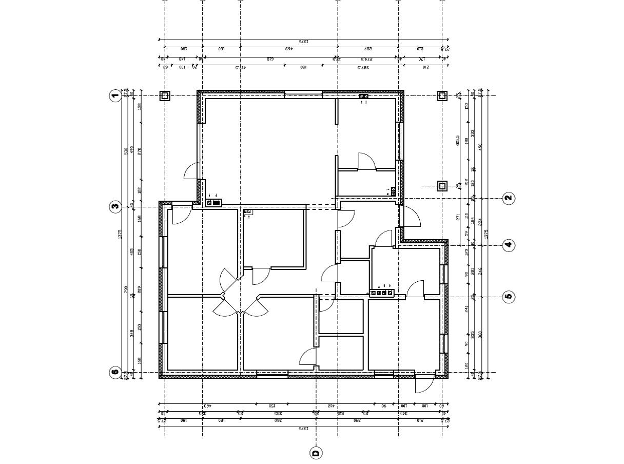
Rzut parteru - odbicie lustrzane. Zamiast garażu dwie garderoby i pomieszczenie gospodarcze, powiększona mała łazienka i dodatkowo wyjśćie z sypialni na taras. Wyjście na strych z pomieszczenia gospodarczego i jeszcze kilka drobnych zmian :-)
Załączniki
ALT.jpg
dymek
Żółtodziób
Posty: 1
Rejestracja: 13 kwie 2017, 08:16
Kontakt:

Re: Projekt domu - Alt

Post autor: dymek »

Witam,może buduje ktoś albo już zbudował Alta w woj.lubelskim???Projekt jest moim zdaniem ciekawy i obniża w wielu kwestiach koszty budowy.Proszę odpiszcie bo zamierzam kupić ten projekt,chciałbym zaczerpnąć kilka informacji od Was.Pozdrawiam
piotras838
Żółtodziób
Posty: 2
Rejestracja: 03 paź 2017, 15:56
Kontakt:

Re: Projekt domu - Alt

Post autor: piotras838 »

Witam wszystkich. Jestem zainteresowany kupnem projektu alt. Chciałbym wiedzieć czy mozna w tej kotłowni wstawić piec na ekogroszek. Czy ktoś z Was ma takie rozwiązanie? Czy garaż jest funkcjonalny tzn czy mozna otworzyc drzwi auta z obu stron i swobodnie wysiadać? Niby takie banały ale jak wazne w codziennym zyciu . Pozdrawiam
MagdaS
Żółtodziób
Posty: 10
Rejestracja: 20 paź 2017, 10:42
Kontakt:

Re: Projekt domu - Alt

Post autor: MagdaS »

Witam Państwa :D
Czy ktoś z Państwa może już wybudował piękny ALT NF 40 w woj. mazowieckim lub lubelskim i będzie tak życzliwy by nam go pokazać? Niema jak na żywo co zobaczyć :) Dziękuję za informację
ODPOWIEDZ

Kto jest online

Użytkownicy przeglądający to forum: Obecnie na forum nie ma żadnego zarejestrowanego użytkownika i 124 gości