Projekt domu - As III G NF40
Re: Projekt domu - As III G NF40
Myślę, że przy zastosowaniu na ścianach izolacji o grubości 20 cm wystarczy Ci styropian o współczynniku lambda 0,40. Jeśli natomiast przewidujesz ogrzewanie podłogowe to proponuję zastosowanie izolacji takiej, jak w projekcie, czyli 20 cm specjalnego styropianu do podłóg. Odpowiadając na pytanie dotyczące garażu to do izolacji podłogi zastosowałem styropian Austrotherm Parking o wytrzymałości na nacisk do 4500 kg/m2.
Re: Projekt domu - As III G NF40
Dzięki za szybka odpowiedź. Czy na ogrzewanie podłogowe jest specjalny styropian?
P.S. Czy już się wprowadziliście do swojego Asa?
P.S. Czy już się wprowadziliście do swojego Asa?
Re: Projekt domu - As III G NF40
Nie słyszałem o styropianie dedykowanym specjalnie do ogrzewania podłogowego. Niestety jeszcze nie mieszkamy w naszym Asiku. Stolarz się rozchorował, zawalił terminy i cały czas czekamy na schody. 
Re: Projekt domu - As III G NF40
Witam wszystkich
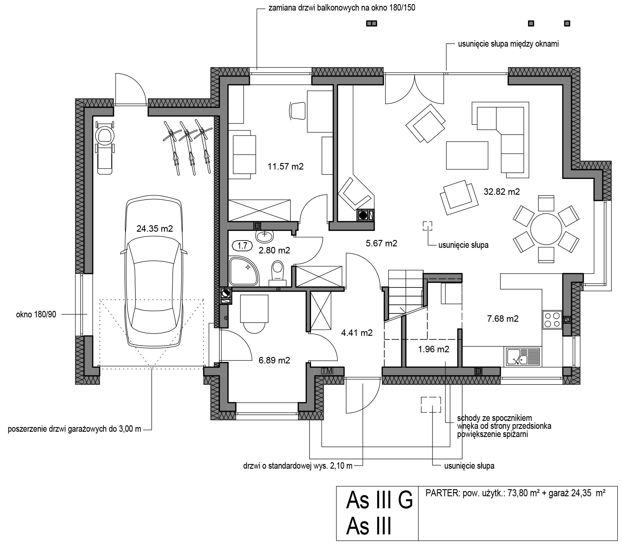
Nie odzywam się w tym temacie od pewnego czasu, ale w Pracowni jesteśmy z forum na bieżąco. I tak śledząc ten i parę innych tematów doszliśmy do wniosku, że wielu inwestorów wymyśliło na swoje potrzeby ciekawe rozwiązania. Zebraliśmy właśnie część z nich i z ciekawości wprowadzamy je do projektu, dodając przy tym nieco własnej inwencji.
Postaram się pokrótce zaprezentować owoce tych przemyśleń - tym, którzy budują pewnie wiele to nie pomoże (chociaż - kto wie?
) ale może przyda się innym? A może zbierze się z tego materiał na całkiem nową wersję Asa?
Na rzutach naniesione niektóre zmiany:
Ze swojej strony zastanawiamy się, na przykład, nad wyrzuceniem słupa podpierającego podcień przy wejściu frontowym. Nurtuje nas również pytanie, czy inwestorzy nie woleliby zamienić narożnych okien w kuchni na jedno okno usytuowane centralnie w ścianie frontowej. Dałoby to więcej miejsca na szafki, ale uczyniłoby widok z kuchni mniej interesującym.
Zastanawiam się, jaki jest Wasz odbiór tych zmian zebranych do kupy na rysunkach?
Postaram się pokrótce zaprezentować owoce tych przemyśleń - tym, którzy budują pewnie wiele to nie pomoże (chociaż - kto wie?
Na rzutach naniesione niektóre zmiany:
Ze swojej strony zastanawiamy się, na przykład, nad wyrzuceniem słupa podpierającego podcień przy wejściu frontowym. Nurtuje nas również pytanie, czy inwestorzy nie woleliby zamienić narożnych okien w kuchni na jedno okno usytuowane centralnie w ścianie frontowej. Dałoby to więcej miejsca na szafki, ale uczyniłoby widok z kuchni mniej interesującym.
Zastanawiam się, jaki jest Wasz odbiór tych zmian zebranych do kupy na rysunkach?
Pozdrowienia od zespołu DK
- Jakub
DISCLAIMER: Prezentowane na forum opinie są indywidualnymi opiniami postującego. Oficjalne stanowisko Domowych Klimatów może być inne!
DISCLAIMER: Prezentowane na forum opinie są indywidualnymi opiniami postującego. Oficjalne stanowisko Domowych Klimatów może być inne!
Re: Projekt domu - As III G NF40
Najfajniej by było gdybyście przekalkulowali więźbę i usunęli te słupy podpierające.
Re: Projekt domu - As III G NF40
Do jakubc Jeśli chodzi o zmiany to podrzucam rzut parteru, według którego buduje, właśnie większość z tych zmian tam zostało uwidocznionych. Jakby ktoś chciał to schemat stropu teriva w końcu mam i mogę wysłać.
Usuniecie słupa-super sprawa, powiększa optycznie salon, usuniecie słupa przy wyjściu na taras umożliwia zamontowanie drzwi przesuwnych otwieranych rozsunięciem na lewo i prawo i mamy piękne wyjście na taras.Mi marzą się właśnie takie na taras
Usuniecie słupa-super sprawa, powiększa optycznie salon, usuniecie słupa przy wyjściu na taras umożliwia zamontowanie drzwi przesuwnych otwieranych rozsunięciem na lewo i prawo i mamy piękne wyjście na taras.Mi marzą się właśnie takie na taras
Re: Projekt domu - As III G NF40
Witam.
Jestem wdzięczny, że w pracowni na bieżąco analizujecie to co się dzieje na forum i na tej podstawie wdrażacie niektóre zmiany. Kubo, projekt zmian, który przedstawiłeś bardzo mi się podoba, tym bardziej, że patrząc na niektóre z nich, mogę nieskromnie powiedzieć, że poczuwam się do ich ojcostwa.
Jeśli chodzi o okno w kuchni to moim zdaniem nie wprowadzałbym większych zmian. Faktycznie widok jest o wiele bardziej ciekawszy (dla nas ma to duże znaczenie bo dzięki temu mamy widok na przyszłą furtkę oraz bramę), a poza tym wieczorem bardzo ładnie doświetla kuchnię od strony zachodniej. Problem ze znalezieniem większej ilości miejsca na szafki można rozwiązać pomniejszając okno od strony północnej oraz wstawiając ściankę działową od strony salonu. Słup w salonie jest jak najbardziej do usunięcia, natomiast ten przed wejściem zupełnie mi nie przeszkadza. Moim zdaniem ozdabia budynek i dodaje mu uroku. Każdy inwestor w zależności od stylu w jakim buduje może go fajnie wykończyć według własnych upodobań i potrzeb. Co do nazwy to nie wprowadzałbym zupełnie nowej, ale pozostawiłbym starą z dodatkiem jakiegoś wyróźnika (np. AS III G BIS). Serdecznie pozdrawiam cały zespół DK i czekam na dalsze pomysły. Radek.
Jestem wdzięczny, że w pracowni na bieżąco analizujecie to co się dzieje na forum i na tej podstawie wdrażacie niektóre zmiany. Kubo, projekt zmian, który przedstawiłeś bardzo mi się podoba, tym bardziej, że patrząc na niektóre z nich, mogę nieskromnie powiedzieć, że poczuwam się do ich ojcostwa.
Jeśli chodzi o okno w kuchni to moim zdaniem nie wprowadzałbym większych zmian. Faktycznie widok jest o wiele bardziej ciekawszy (dla nas ma to duże znaczenie bo dzięki temu mamy widok na przyszłą furtkę oraz bramę), a poza tym wieczorem bardzo ładnie doświetla kuchnię od strony zachodniej. Problem ze znalezieniem większej ilości miejsca na szafki można rozwiązać pomniejszając okno od strony północnej oraz wstawiając ściankę działową od strony salonu. Słup w salonie jest jak najbardziej do usunięcia, natomiast ten przed wejściem zupełnie mi nie przeszkadza. Moim zdaniem ozdabia budynek i dodaje mu uroku. Każdy inwestor w zależności od stylu w jakim buduje może go fajnie wykończyć według własnych upodobań i potrzeb. Co do nazwy to nie wprowadzałbym zupełnie nowej, ale pozostawiłbym starą z dodatkiem jakiegoś wyróźnika (np. AS III G BIS). Serdecznie pozdrawiam cały zespół DK i czekam na dalsze pomysły. Radek.
Re: Projekt domu - As III G NF40
Wojtku bardzo miło Cię znowu widzieć na forum.
Napisz co słychać u Ciebie na budowie i wrzuć chociaż parę fotek. Pozdrawiam. 
Re: Projekt domu - As III G NF40
Kubo przypomniała mi się jeszcze jedna propozycja zmiany, a mianowicie likwidacja ścianki działowej w górnej łazience. Moim zdaniem niepotrzebnie ją pomniejsza, a ściana kolankowa jest na tyle wysoka, że bez problemu można wstawić wannę, albo szafki.
Re: Projekt domu - As III G NF40
ścianka tam pewnie po to aby wmontować rozdzielacz do podłogówki i c.o. ale można go zawsze zamontować w pralni.
Kto jest online
Użytkownicy przeglądający to forum: Obecnie na forum nie ma żadnego zarejestrowanego użytkownika i 87 gości