Projekt domu - As III G NF40

Porozmawiajmy na temat projektów. Dedykowane wątki dla każdego projektu Domowych Klimatów.
Awatar użytkownika
femstudio
Domator
Posty: 152
Rejestracja: 13 lis 2014, 19:25
Kontakt:

Re: Projekt domu - As III G NF40

Post autor: femstudio »

prosiłbym aby osoby nie związane z tematem nie wrzucały na forum postów z reklamami, jeśli ktoś będzie chciał, to będzie wiedział jak was znaleźć. pozdrawiam

[EDIT: spamerski post został usunięty - jakubc]
Lukas
Majsterkowicz
Posty: 34
Rejestracja: 23 lut 2016, 01:48
Kontakt:

Re: Projekt domu - As III G NF40

Post autor: Lukas »

Mam kilka pytań:
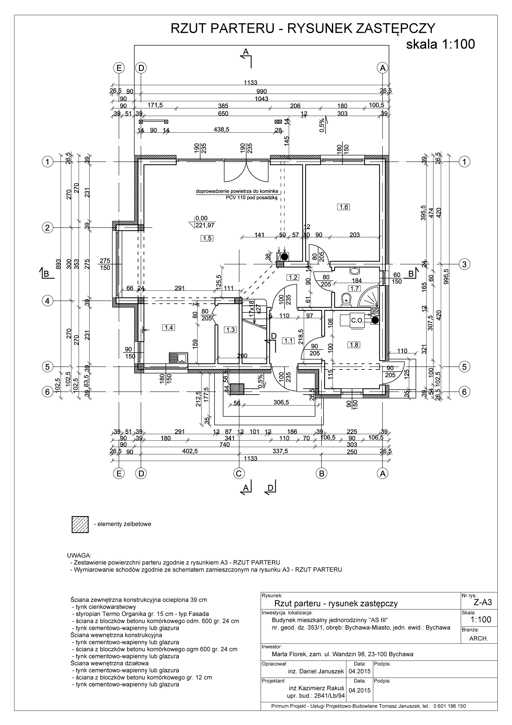
1. Jaki jest strop nad garażem? Przypuszczam że drewniany to przy poszerzeniu na x2 czeka pewnie zmiana.
2. Na rysunku wygląda że komin w kotłowni w pełni zastąpił pustaki? jak jest puszczony przez wieniec? Jest przerwany?
3. W jakim celu są belki na piętrze w dwóch pokojach bezpośrednio przy murze nośnym?
4. Czy może ktoś podesłać skan przynajmniej parteru z projektu?
Awatar użytkownika
femstudio
Domator
Posty: 152
Rejestracja: 13 lis 2014, 19:25
Kontakt:

Re: Projekt domu - As III G NF40

Post autor: femstudio »

kolego Lukas. u nas komin jest wsunięty do środka do kotłowni i nie koliduje z wieńcem stropu.
musisz jednak dokładnie dobrać długość i szerokość, aby nie kolidował ci potem z płatwią na dachu. Nie jestem pewien tylko czy komin w wersji z garażem znajduje się w tym samym miejscu co bez garażu. jeśli chodzi o belki na poddaszu podtrzymujące płatew, to tą jedną co przy ścianie nie dawaliśmy bo cieśla stwierdził, że nie ma takiej potrzeby, ponieważ płatew będzie się spierać na murze.
Załączniki
DSCF6024.JPG
DSCF6021.JPG
rys_A3-1.jpg
kamildrek
Żółtodziób
Posty: 1
Rejestracja: 30 lis 2016, 18:37
Kontakt:

Re: Projekt domu - As III G NF40

Post autor: kamildrek »

Szukam inspiracji, ten projekt bardzo mi się podoba. Na pewno skorzystam.
Awatar użytkownika
femstudio
Domator
Posty: 152
Rejestracja: 13 lis 2014, 19:25
Kontakt:

Re: Projekt domu - As III G NF40

Post autor: femstudio »

Zapraszamy
W razie jakichs pytań podpowiemy
Lukas
Majsterkowicz
Posty: 34
Rejestracja: 23 lut 2016, 01:48
Kontakt:

Re: Projekt domu - As III G NF40

Post autor: Lukas »

Czy ktoś budował wersję z garażem? Dostałem właśnie zdjęcie z projektu i faktycznie komin jest w pełni wpuszczony w pustaki i na pierwszym poziomie jest już ścianą zewnętrzną. Jak wygląda sprawa z wieńcem? Bo wszystko wskazuje na to że jest przerwany, jak to rozwiązaliście na swoich budowach?
Awatar użytkownika
femstudio
Domator
Posty: 152
Rejestracja: 13 lis 2014, 19:25
Kontakt:

Re: Projekt domu - As III G NF40

Post autor: femstudio »

wyślij wiadomość do Radka, on ma z garażem i ci wszystko powie.
Awatar użytkownika
jakubc
Moderator
Posty: 349
Rejestracja: 17 paź 2014, 09:26
Lokalizacja: Białystok
Kontakt:

Re: Projekt domu - As III G NF40

Post autor: jakubc »

Lukas pisze:Czy ktoś budował wersję z garażem? Dostałem właśnie zdjęcie z projektu i faktycznie komin jest w pełni wpuszczony w pustaki i na pierwszym poziomie jest już ścianą zewnętrzną. Jak wygląda sprawa z wieńcem? Bo wszystko wskazuje na to że jest przerwany, jak to rozwiązaliście na swoich budowach?
W projekcie konstrukcyjnym jest wskazane odpowiednie rozwiązanie. Zbrojenie wieńca oczywiście nie jest przerwane, tylko omija przewód kominowy, wykorzystując przestrzeń stropu.
Pozdrowienia od zespołu DK :) - Jakub
DISCLAIMER: Prezentowane na forum opinie są indywidualnymi opiniami postującego. Oficjalne stanowisko Domowych Klimatów może być inne!
TOMEK87
Domator
Posty: 10
Rejestracja: 02 gru 2016, 21:40
Kontakt:

Re: Projekt domu - As III G NF40

Post autor: TOMEK87 »

My rowniez budujemy Asika, ale w zmienionej wersji.
TOMEK87
Domator
Posty: 10
Rejestracja: 02 gru 2016, 21:40
Kontakt:

Re: Projekt domu - As III G NF40

Post autor: TOMEK87 »

Na razie to wygląda tak :)
Załączniki
CAM00231.jpg
ODPOWIEDZ

Kto jest online

Użytkownicy przeglądający to forum: Obecnie na forum nie ma żadnego zarejestrowanego użytkownika i 87 gości