Projekt domu - Neptun II NF40

Porozmawiajmy na temat projektów. Dedykowane wątki dla każdego projektu Domowych Klimatów.
optyk
Żółtodziób
Posty: 9
Rejestracja: 03 maja 2016, 19:22
Kontakt:

Re: Projekt domu - Neptun II NF40

Post autor: optyk »

Widzę, że budowy rozwijają się ładnie.
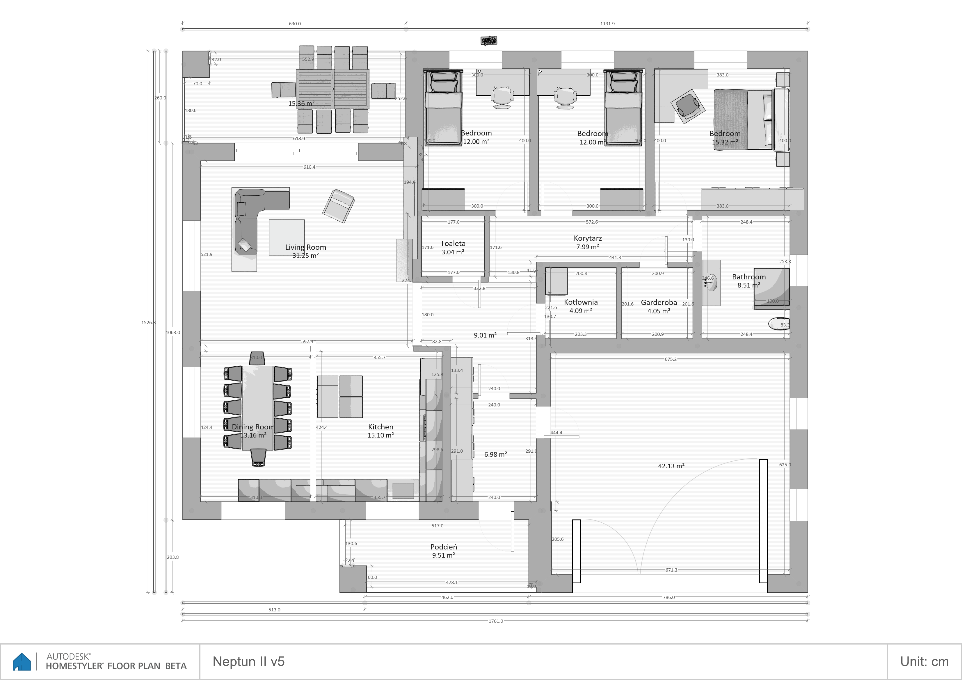
U nas projekt zakupiony. Lustrzane odbicie. Planujemy zrobić mniej więcej coś takiego z tego :
Plan
Plan
Układ jadalnia, kuchnia, wiatrołap jeszcze dość płynny, podobnie pomieszczenia gospodarcze i łazienki.
Ustawienie frontem na południowy wschód (minimalnie bardziej na wschód niż na południe).
Zmiany na zewnątrz dotyczą ścian salonu i frontowej.
- Usunięty ma być uskok w podcieniu.
- Ściana salonu wyrównana do wykuszu (tym samym likwidacja wykuszu).
- Powiększony taras pod dachem przez przesunięcie ściany wgłąb salonu.

Jeśli ktoś ma ochotę się wypowiedzieć to zachęcam :)
Ostatnio zmieniony 19 wrz 2016, 11:50 przez optyk, łącznie zmieniany 1 raz.
magdaLUKASZneptun2
Domator
Posty: 2
Rejestracja: 02 lis 2015, 13:59
Kontakt:

Re: Projekt domu - Neptun II NF40

Post autor: magdaLUKASZneptun2 »

Witam, nasz neptun już wybudowany i zaczynamy wykończenia w środku. Jeśli jest ktoś zainteresowany to zapraszamy do Grabowca , woj. Lubelskie, pow. Zamojski.
Tel. 516822832 Łukasz
Pozdrawiamy Magda i Lukasz.
optyk
Żółtodziób
Posty: 9
Rejestracja: 03 maja 2016, 19:22
Kontakt:

Re: Projekt domu - Neptun II NF40

Post autor: optyk »

Chętnie skorzystamy. Odezwiemy się pewnie w niedługim czasie. :)
mar.zur
Żółtodziób
Posty: 6
Rejestracja: 10 paź 2015, 12:00
Kontakt:

Re: Projekt domu - Neptun II NF40

Post autor: mar.zur »

Witam

Ciąg dalszy Neptuna II na Podkarpaciu...
Podnieśliśmy kąt dachu na 33 st. i powiększyli wszystkie sypialnie o ok. 2m2 każda. Garaż wysunięty do frontu 60 cm.
Techniczne wejście od strony garażu daje możliwość stworzenia niezależnego mieszkania na poddaszu.

Pozdrawiam
M
Załączniki
IMG_20161001_181549.jpg
IMG_20161001_181526.jpg
IMG_20161001_181646.jpg
IMG_20161001_184657.jpg
Driver09
Domator
Posty: 7
Rejestracja: 04 maja 2016, 13:32
Kontakt:

Re: Projekt domu - Neptun II NF40

Post autor: Driver09 »

Witam my na ten rok zakończyliśmy prace na zewnątrz , kotłownia juz uruchomiona teraz działamy w środku
Załączniki
IMG_20161218_120501.jpg
IMG_20161218_120428.jpg
IMG_20161218_120412.jpg
IMG_20161218_120326.jpg
IMG_20161218_120253.jpg
pawelparzych
Żółtodziób
Posty: 7
Rejestracja: 01 lip 2014, 11:46
Lokalizacja: Łomża
Kontakt:

Re: Projekt domu - Neptun II NF40

Post autor: pawelparzych »

A może ktoś z Was ma fotki jak montowaliście okna ?
W projekcie mam, oprócz witryny w salonie i jadalni, okna montowane poza murem - w styropianie na jakichś specjalnych kotwach, czy profilach?
optyk
Żółtodziób
Posty: 9
Rejestracja: 03 maja 2016, 19:22
Kontakt:

Re: Projekt domu - Neptun II NF40

Post autor: optyk »

My jeszcze do etapu okien nie doszliśmy, ale kiedy rozmawiałem o montażu w warstwie ocieplenia na kotwach/konsolach to sprzedawcy twierdzili, że nie warto (koszt zbyt wysoki w stosunku do zysków).
kapicjar
Żółtodziób
Posty: 3
Rejestracja: 05 wrz 2017, 16:39
Kontakt:

Re: Projekt domu - Neptun II NF40

Post autor: kapicjar »

Witam serdecznie wszystkich.
Bardzo chętnie bym zobaczył projekt na żywo. Ktoś buduje projekt woj. Lubelskie, Podkarpackie ??
optyk
Żółtodziób
Posty: 9
Rejestracja: 03 maja 2016, 19:22
Kontakt:

Re: Projekt domu - Neptun II NF40

Post autor: optyk »

U nas pod Lublinem stan taki jak poniżej. Wyślij PW jeśli masz ochotę obejrzeć to co powstało do tej pory - oprowadzimy :)
Załączniki
20170904_071818.jpg
Driver09
Domator
Posty: 7
Rejestracja: 04 maja 2016, 13:32
Kontakt:

Re: Projekt domu - Neptun II NF40

Post autor: Driver09 »

My już bliżej jak dalej, jak się wyrobimy święta Bożego Narodzenia już w Neptunku :ugeek:
Załączniki
IMG_20170930_183223.jpg
IMG_20170913_151904.jpg
IMG_20170830_174041.jpg
IMG_20170930_183155.jpg
ODPOWIEDZ

Kto jest online

Użytkownicy przeglądający to forum: Obecnie na forum nie ma żadnego zarejestrowanego użytkownika i 63 gości