To mnie zmartwiliście, myślałam, że nie będzie z tym poddaszem, aż tyle problemów. W głowie już dawno miałam pomysł, żeby zrobić na górze pokój gościnny i graciarnię. A schody zrobić spiralne, aby zajmowały jak najmniej miejsca. Tu chciałabym przenieść właz.
Nie wiem tylko czy to się zmieści, nie konsultowałam tego z żadnym architektem, ani budowlańcem:/ A co Wy myślicie?
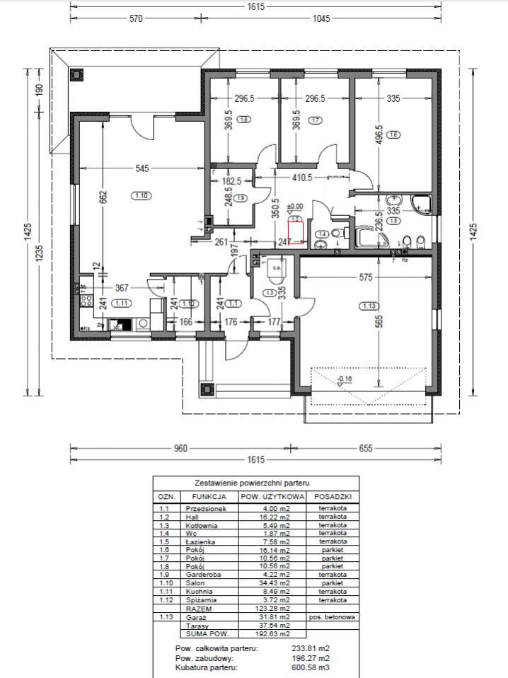
Projekt domu "Kaprys"
Re: Projekt Kaprys
Z tym dachem to jest sporo roboty, slupy sa tak liczne bo i w projekcie byl strop monolityczny lany, wiec dla projektanta to bez znaczenia gdzie postawi slup i nawtykal ich tyle ile mu pasowalo. Napewno tak zaprojektowany dach jest super mocny.
Ale jezeli juz zmienic rodzaj stropu na Teriva trzeba myslec gdzie beda slupy i tam stawiac belki i pewnie je jeszcze dozbrajac?
Wszystko zalezy od obciazen jakie te slupy przenosza. Moze mozna zredukowac ilosc slupow na srodku, moj dekarz zaproponowal kleszcze ale to musi zatwierdzic moj KB (ma uprawnienia architekta) wiec czekam.
Jak cos sie dowiem to dam znac. (przynajmniej odnosnie tych slupow w korytarzu.
Tu widac mniejwiecej pozycje slupow na stropie. Nad garazem musialem przesunac slupy o 90 cm o tyle wydluzony mam garaz. TU widac ktore slupy najbardziej przeszkadzaja aby zrobic otwor na schody, naszczescie nie podtrzymuja koszy wiec chyba da sie je zastapic kleszczami albo jakos inaczej.
A i ta czerwona belka to taki pomysl dekarza aby prosciej zrobic dach, jak zamknie tak czesc dachu to bedzie duzo stabilniejszy a konstrukcja sama sie bedzie lepiej trzymala.
I kilka aktualniejszych zdjec.
Ale jezeli juz zmienic rodzaj stropu na Teriva trzeba myslec gdzie beda slupy i tam stawiac belki i pewnie je jeszcze dozbrajac?
Wszystko zalezy od obciazen jakie te slupy przenosza. Moze mozna zredukowac ilosc slupow na srodku, moj dekarz zaproponowal kleszcze ale to musi zatwierdzic moj KB (ma uprawnienia architekta) wiec czekam.
Jak cos sie dowiem to dam znac. (przynajmniej odnosnie tych slupow w korytarzu.
Tu widac mniejwiecej pozycje slupow na stropie. Nad garazem musialem przesunac slupy o 90 cm o tyle wydluzony mam garaz. TU widac ktore slupy najbardziej przeszkadzaja aby zrobic otwor na schody, naszczescie nie podtrzymuja koszy wiec chyba da sie je zastapic kleszczami albo jakos inaczej.
A i ta czerwona belka to taki pomysl dekarza aby prosciej zrobic dach, jak zamknie tak czesc dachu to bedzie duzo stabilniejszy a konstrukcja sama sie bedzie lepiej trzymala.
I kilka aktualniejszych zdjec.
Re: Projekt Kaprys
No juz po spotkaniu z KB.
Jezeli nie robic stropu monolitycznego w kaprysie to bedzie od groma kombinowania to raz.
Dwa zrobic monolit to masa stali 3 tony lekko liczac i masa betonu b20 i masa desek do szalunku z 6 m3 = bardzo drogo
Teriva - 60 mb podciagow (zaproponowano mi 3 belki Teriva dozbrojone 8 pretami fi 12, belka wysoka na 30 cm) = masa stali i betonu (jeszcze nie wiem ile wiec poczekam z narzekaniem)
plyty zeranskie - zero problemu z slupami ale ostrzegaja mnie ze bedzie mi mogl strop pekac "klawiszowac" cenowo dostalem oferte na 15 tys netto + 3 m2 dolewek monolitycznych + dzwig (1000-2000 zl) + szukac kumatych co mi to dobrze poloza
to tyle z placu boju jutro cd.
Jezeli nie robic stropu monolitycznego w kaprysie to bedzie od groma kombinowania to raz.
Dwa zrobic monolit to masa stali 3 tony lekko liczac i masa betonu b20 i masa desek do szalunku z 6 m3 = bardzo drogo
Teriva - 60 mb podciagow (zaproponowano mi 3 belki Teriva dozbrojone 8 pretami fi 12, belka wysoka na 30 cm) = masa stali i betonu (jeszcze nie wiem ile wiec poczekam z narzekaniem)
plyty zeranskie - zero problemu z slupami ale ostrzegaja mnie ze bedzie mi mogl strop pekac "klawiszowac" cenowo dostalem oferte na 15 tys netto + 3 m2 dolewek monolitycznych + dzwig (1000-2000 zl) + szukac kumatych co mi to dobrze poloza

to tyle z placu boju jutro cd.
Re: Projekt Kaprys
Witam dawno mnie nie było pochłonięty byłem budową dołączam kilka zdjęć
Mamy skończone zero w górę pną się ściany.
Mamy skończone zero w górę pną się ściany.
Re: Projekt Kaprys
Przyjechala Teriva,
po wycenach plyt zeranskich i monolitu stwierdzilem, ze wole teriva.
92 belki + 1300 pustakow.
Dzieki Teriva latwiej mi bedzie zrobic otwor na schody w korytarzu (w przyszlosci) oraz schody strychowe w garazu
pod slupy zastosuje podciagi z 3 belek teriva dozbrojonych 4 pretami fi 16 i 3 pretami fi12 (lacznie 44 mb podciagow.)
po wycenach plyt zeranskich i monolitu stwierdzilem, ze wole teriva.
92 belki + 1300 pustakow.
Dzieki Teriva latwiej mi bedzie zrobic otwor na schody w korytarzu (w przyszlosci) oraz schody strychowe w garazu
pod slupy zastosuje podciagi z 3 belek teriva dozbrojonych 4 pretami fi 16 i 3 pretami fi12 (lacznie 44 mb podciagow.)
Re: Projekt Kaprys
Witam, moje nowe fotki. Ostatnio szukałem stempli, zajęło mi to trochę czasu ale już są .W przyszłym tygodniu będziemy zalewać strop .
Re: Projekt Kaprys
U nas też budowa ruszyła, i szybko idzie, byłoby szybciej żeby deszcz nam nie przeszkadzał:(
Re: Projekt Kaprys
No to w koncu Kaprysy zaczely powstawac.
Re: Projekt Kaprys
Kominy pomurowane, wszystkie slupy zalane, zostal kawalek stropu nad tarasem wejsciowym i powoli mozna myslec o zalewaniu
Kto jest online
Użytkownicy przeglądający to forum: Obecnie na forum nie ma żadnego zarejestrowanego użytkownika i 48 gości