Projekt domu - As VII
Re: Projekt domu - As VII
Mam pytanie, czy ktoś z Was również rezygnuje z garażu który jest w projekcie? My właśnie tak zrobiliśmy i przez to.mamy dużo większy salon z jadalnią.. tzn. Jesteśmy w trakcie budowy dopiero 
-
kociolek87
- Majsterkowicz
- Posty: 33
- Rejestracja: 29 wrz 2017, 07:27
- Kontakt:
-
kociolek87
- Majsterkowicz
- Posty: 33
- Rejestracja: 29 wrz 2017, 07:27
- Kontakt:
-
kociolek87
- Majsterkowicz
- Posty: 33
- Rejestracja: 29 wrz 2017, 07:27
- Kontakt:
Re: Projekt domu - As VII
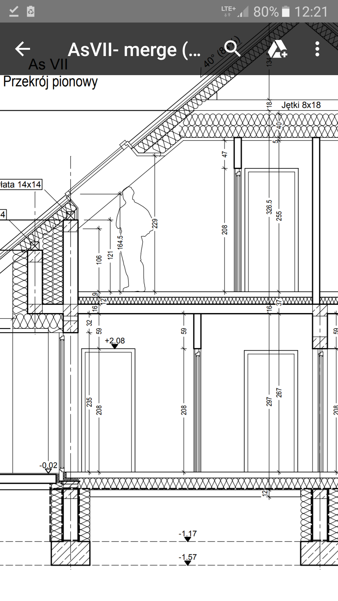
Witam czy możecie podać jaka wysoka wyszła ścianka na górze pod skosami bo się zastanawiam czy nie podnieść o pustaka?
-
kociolek87
- Majsterkowicz
- Posty: 33
- Rejestracja: 29 wrz 2017, 07:27
- Kontakt:
Re: Projekt domu - As VII
Tak wychodzi +-.my mamy obrobione murłate to zwieksza wysokosc o 14 cm.
Re: Projekt domu - As VII
Czy ktoś zmieniał wielkość okna w kuchni?? czym wykańczaliście kominy?? Czy ktoś zrezygnował z wylania schodów??
-
kociolek87
- Majsterkowicz
- Posty: 33
- Rejestracja: 29 wrz 2017, 07:27
- Kontakt:
Re: Projekt domu - As VII
u nas tak jest 140 od posadzki
156 początek stelażu od wc
190 koniec muszli
156 początek stelażu od wc
190 koniec muszli
-
kociolek87
- Majsterkowicz
- Posty: 33
- Rejestracja: 29 wrz 2017, 07:27
- Kontakt:
-
kociolek87
- Majsterkowicz
- Posty: 33
- Rejestracja: 29 wrz 2017, 07:27
- Kontakt:
Re: Projekt domu - As VII
my zmienialiśmy.zrezygnowaliśmy z okna narożnego .mamy teraz h 150 na 130
komin mamy wykończony z blachy .
schody mamy betonowe
komin mamy wykończony z blachy .
schody mamy betonowe
Kto jest online
Użytkownicy przeglądający to forum: Obecnie na forum nie ma żadnego zarejestrowanego użytkownika i 30 gości